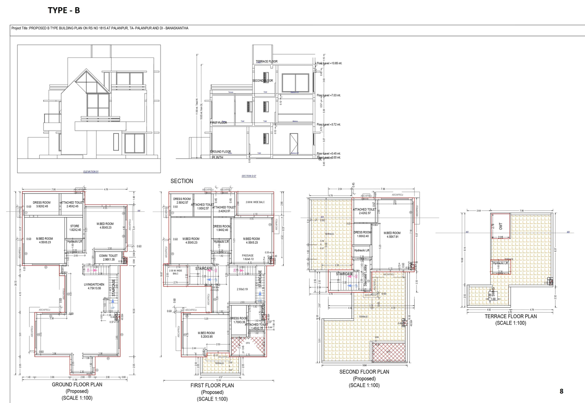
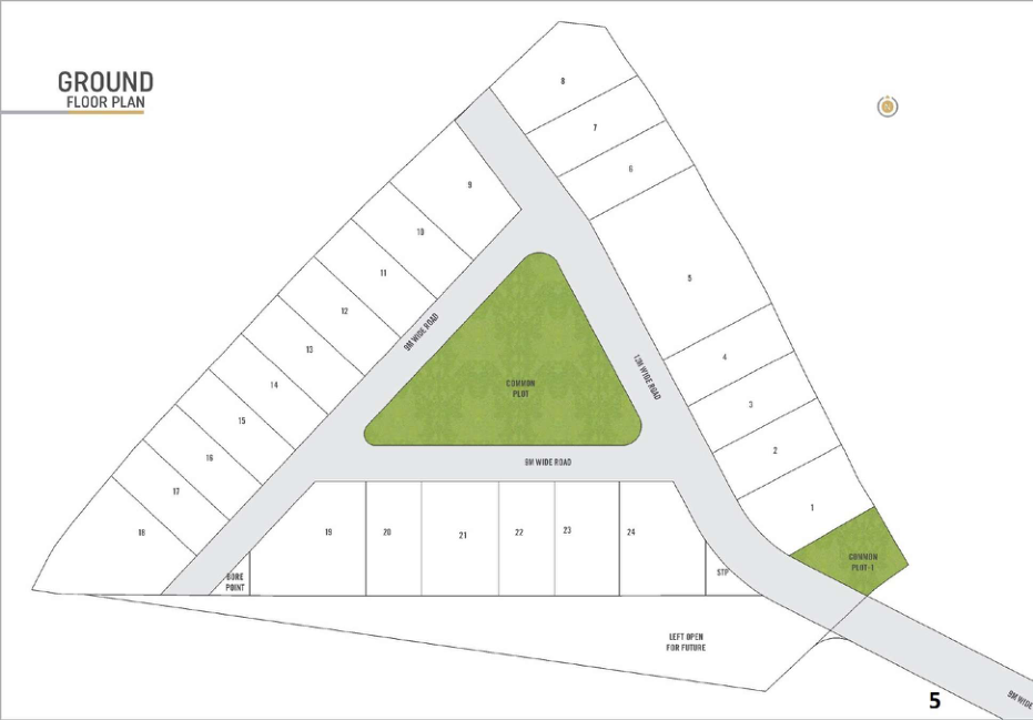
by Ami Infrabuild LLP
Residential/Group Housing
Others
PR/GJ/BANASKANTHA/PALANPUR/Others/RAA11301/020323
Discover detailed information about this project on TownPlanMap