SKY LINE

by SHANTI REALTY

Project Photo Project Photo Project Photo Project Photo Project Photo Project Photo Project Photo Project Photo Project Photo Project Photo
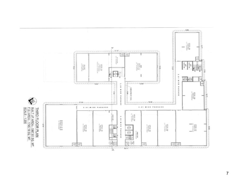
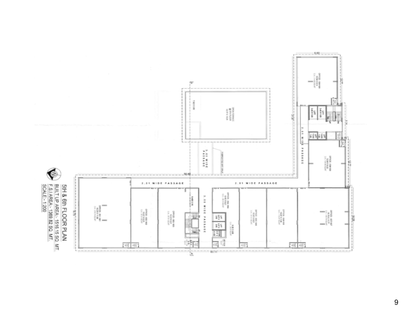
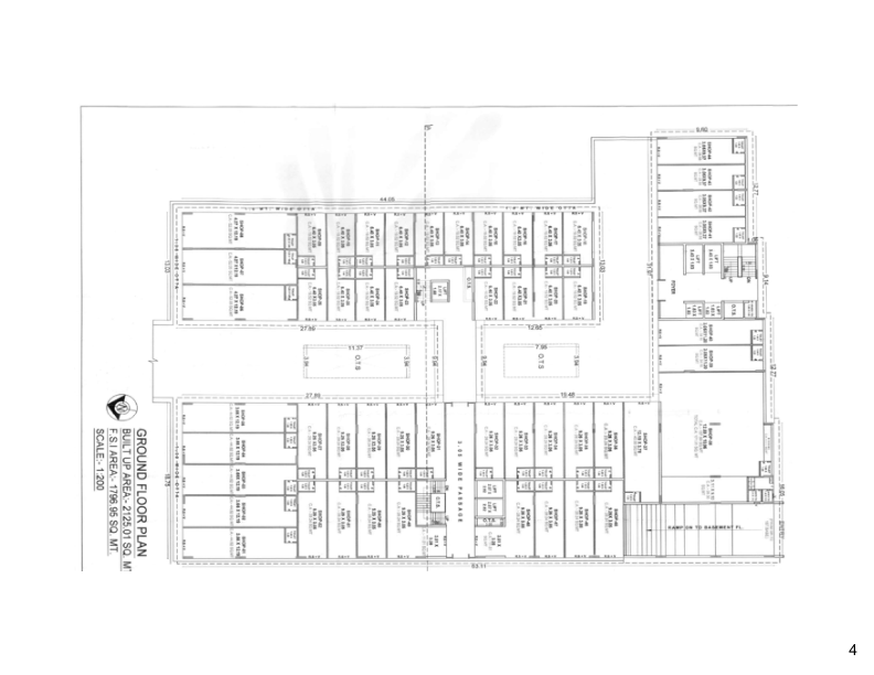
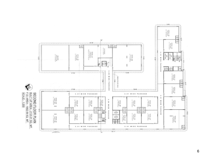
Project Details
PROJECT TYPE

Commercial

APPROVING AUTHORITY

Others

PROJECT REGISTRATION NUMBER

PR/GJ/BHARUCH/BHARUCH/Others/CAA10779/141022

Explore More

Discover detailed information about this project on TownPlanMap